地址:上海市奉賢區金匯鎮工業路1111號
版權所有:江蘇遠途彩鋼夾芯板有限公司 法律聲明 滬公網安備 31012002003568號
地址:上海奉賢區金匯鎮工業路1111號(與浦星公路交叉)
電話:13818188726
傳真:86-21-57576963
全國服務熱線 13818188726
立即預定外形美觀·裝修檔次高·舒適度高
效果圖
定制兼顧符合您的最佳方案

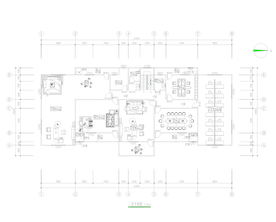
工程概況
本工程為西安盈凱進出口貿易有限公司莫桑比克營地項目,
工程地點:莫桑比克;
本工程為辦公樓項目,建筑高度為6m(檐口高度);
占地面積218.64平方米,建筑面積356.16平方米。
本工程主要結構形式為冷彎薄壁型鋼結構,抗震設防烈度為8度。
點擊查看下方視頻

外形美觀·裝修檔次高·舒適度高
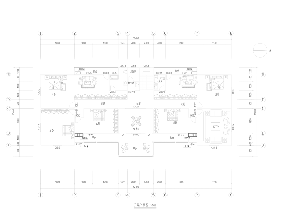
平面圖
定制兼顧符合您的最佳方案




